Достоинства и недостатки
Преимущества и недостатки навесов с хозблоками отчасти зависят от материалов, из которых возводится конструкция. К числу достоинств подобных построек относят следующее:
- экономия средств;
- простая конструкция, что позволяет возводить сооружение самостоятельно;
- быстрый монтаж (занимает не более недели);
- наличие возможности расширить полезную площадь;
- наличие отдельной зоны, предназначенной для хранения автомобильного или огородного инвентаря;
- множество конструктивных решений, благодаря чему можно подобрать вариант, соответствующий особенностям дома и остального ландшафта.
Основной недостаток навеса с хозблоком заключается в отсутствии полной защиты автомобиля от атмосферных осадков. Второй минус подобных конструкций — невозможно проводить ремонт машины в зимнее время года.

Этап III. Изготовление мауэрлата
Если стены сарая были изготовлены из кирпича, бетона, блоков или других подобных им передающих влагу материалов, тогда стропила двускатной крыши должны опираться на эти стены через специальный деревянный брусок. Он называется мауэрлатом.
В противном случае сырые стены, которые намокли от дождя, будут передавать влагу деревянным элементам крыши. В итоге те будут гнить, разрушаться и перекашивать крышу. Нам этого не нужно, не правда ли?
Но главная задача мауэрлата – равномерно передать нагрузку от крыши к стенам сарая. Мауэрлат нужен не всегда: чем проще и меньше по габаритам ваша хозпостройка, тем более упрощено и ее строительство. А если сарай большой, но стены у него из бруса или камня, примером, тогда беспокоиться о точечном давлении стропильной системы крыши также не стоит.
Соединить стропила между собой и с мауэрлатом вы можете как при помощи специальных металлических креплений, так и путем врубки.



Вот и все премудрости строительства стропильной системы сарая.
Сарай с односкатной крышей 3х6
Крыша будет вальмовой. Вот пояснительная картинка, чтобы было более понятно:


Фото поближе:
Крыша почти готова:

Сделал обрешетку крыши:

В качестве покрытия крыши был выбран коррубит.
Настелил крышу, начал обшивать сарай блок-хаусом под брус:

Установил окна и двери, получился вот такой симпатичный сарайчик:

На строительство ушло около двух недель.
Еще думаю обшить низ сарая чем-нибудь типа плоского шифера, чтобы закрыть бетонные столбы. Ну и ступеньки можно добавить.
Каркас сарая построен на фундаменте, который мы подготовили на последнем этапе. Мы будем использовать балки и доски для рамки.
Это интересно: Типы фундаментных подушек
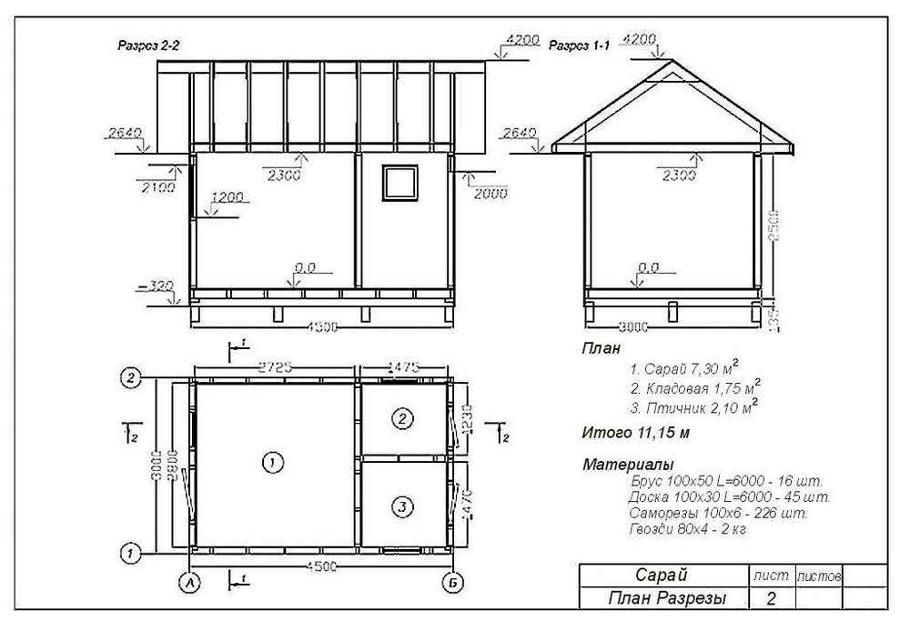
Чертеж сарая с односкатной крышей
Одной из самых важнейших построек на дачном участке является сарай. В нем всегда найдется место для хранения различных хозяйственных принадлежностей для дома, сада и огорода. А если размеры вашего сарая позволят, то можно вместить туда еще и туалетную комнату и душевой сектор. Если подойти к строительству сарая максимально серьезно, то эта работа не займет у вас много времени и сил. Есть много различных видов таких построек. Для новичков в строительном деле советуем попробовать начать с самых простых — каркасных конструкций. Правила сборки каркасного сарая приведены ниже. Для начала ознакомьтесь с ними и начинайте работу.
Выбираем местоположение для будущего сарая
Если вы желаете понять, как построить сарай своими руками, то вам помимо современных сведений стоит посмотреть проекты таких построек. Чтобы сарай прослужил вам долгое время, надо найти для него удачное место. Для выбора местоположения сарая необходимо отталкиваться от расположения других объектов на участке. Некоторым удобно, чтобы сарай располагался в самом дальнем углу территории, а кому то удобно иметь сарай возле дома. Наверняка на Вашем участке найдется место, которое не затронуто садовыми насаждениями и грядками. Вот это и есть самое рациональное место для начала строительства. До начала строительства не забудьте заранее все продумать: учитывайте все размеры будущей постройки и прочие близкие к ней данные. При этом не забудьте, что Ваш сарай должен гармонично смотреться и сочетаться с другими постройками на участке.

Что нужно для строительства сарая
Если вы определили местоположение сарая, то важно подготовить все необходимое для качественного строительства. Итак, для строительства сарая вам понадобится:
- Станок для обработки дерева. С ним работа будет легче, но можно обойтись и без него.
- Электролобзик.
- Ручная циркулярная пила.
- Шуруповерт.
- Электродрель.
- Электрический рубанок.
- Цепная пила.
- Доски.
- Бревна.
- ДВП.
- Рубероид.
- Крепежные элементы.
- Световые аксессуары.
- Клей ПВА.
- Розетки.
- Клеенка.

Как соорудить основу для сарая
Из этой статьи вы сможете узнать о том, как построить сарай своими руками. Любая стройка начинается с заливки фундамента. Чтобы постройка выдержала необходимо надежное и прочное основание.
Для строительства основания сарая можно использовать фундамент столбчатого, монолитного, ленточного и свайно-винтового типа. В основном для такой постройки выбирают столбчатый тип основания.
- Для начала вам необходимо разметить площадь фундамента. Для этого можете воспользоваться рулеткой, шнуром и различными колышками. Рулеткой измеряются ширина и длина будущей конструкции. Все параметры должны быть максимально точными.
- Чтобы установить столбы необходимо по периметру: в углах и местах пересечения перегородок вырыть небольшие ямы глубиной около 50-70 см (можно и глубже, но это зависит от промерзания грунта). Самое приемлемое расстояние между столбами — 1.2 — 1.5 м.
- Установить опоры из асбестовых труб, заполненных арматурой и бетоном или кирпичные столбы — это на Ваш выбор. После установки столбов обязательно проверьте ровность при помощи строительного уровня.
- Затем место вокруг опор необходимо засыпать смесью с песком и гравием на 150 мм высоты ямы, а остальное залить бетоном.
- Теперь надо «отдохнуть» фундаменту несколько дней. Для того чтобы основание Вашего сарая прослужило долго, перед засыпкой и бетонированием можно обработать столбы специализированной мастикой.
Советуем прочесть статью портала:Как замесить качественный раствор бетона самостоятельно

Скелет сарая из дерева
Если фундамент уже готов, то теперь начинаем сборку каркаса сарая. Перед укладкой деревянных брусков проверьте, чтобы все дерево было обработано специальным антисептиком. Это позволит дереву дольше сохраниться. Наиболее распространенным средством является пропитка с колером. Им очень удобно пользоваться и те места, которые не обработаются их будет не очень заметно.
Укладываем деревянные брусья на готовое основание. Размеры бруса выбирайте в соответствии с размерами вашей будущей постройки.
Из чего строить
Сарай с двухскатной крышей можно построить из разных материалов:
- досок,
- сайдинга на каркасе из бруса,
- профлиста на каркасе из металлического профиля,
- пеноблоков,
- кирпича,
- бруса,
- бревна.
Самый дешевый вариант строительства сарая — это именно каркасный. Для этого потребуется брус или профильная металлическая труба прямоугольного сечения для каркаса и материал, которым каркас будет обшит.

Для постройки каркасного сарая можно взять брус 10*10 см для каркаса и обрезную доску для его обшивки. Предварительно все деревянные детали обрабатывают антисептиком от гниения.
Для сарая из пеноблока, кирпича и других тяжелых материалов можно залить мелкозаглубленный ленточный фундамент.
Для крыши понадобятся доски или металлический профиль для стропил и кровельный материал, который может быть любым.

Строительство односкатной крыши своими руками
Как правильно рассчитать угол наклона, выбрать кровельный материал и спроектировать конструкции односкатной крыши разобрались, теперь пора переходить к практике.

Инструменты

- Ножовка ручная, по дереву и по металлу;
- Бензопила, а еще лучше — торцовочная пила на станине;
- Электролобзик;
- Шуруповерт;
- Топор;
- Молоток;
- Набор стамесок;
- Строительный пузырьковый уровень и гидроуровень;
- Рулетка;
- Отвес;
- Степлер (пригодится, когда начнете монтировать утепление).

Вариант №2. Кровля для гаража

В общем и целом устройство крыши гаража мало чем отличается от монтажа кровли большого дома, те же стропила, упоры, балки и прочие узлы, но материал можно брать подешевле, да и сборка попроще.

Видео 1.

Видео 2.

Видео 3.

Видео 4.
Выбор места и проектирование
Сарай однозначно является подсобным строением, поэтому при его сооружении архитектурные изыски неуместны, и не нужно, чтобы он как-то выделялся в общем ландшафтном дизайне.
Наиболее рациональным его размещением будет либо его пристройка непосредственно к дачному дому, либо сооружение такого сарая где-нибудь на краю участка. Место для его постройки должно быть удобным, а строительную площадку лучше всего организовать там, где почва меньше всего пригодна для посадок.
Любое строительство, даже и не очень сложное, следует начинать с проекта. Обращаться с таким вопросом к профессионалам довольно дорого и нецелесообразно, а вот собственноручные чертежи и эскизы будут весьма кстати. Особенно для расчета количества материала и в качестве основы для технических решений в ходе строительства такая схема просто необходима.
Нанимать для этой работы профессиональных строителей также накладно и неразумно, ибо такую работу, в сущности, может выполнить каждый мужчина, владеющий минимальным набором строительных навыков. Поэтому сооружение сарая должно выполняться своими руками.
Как сделать своими руками?
С листами поликарбоната несложно работать, это лёгкий и надёжный материал, он не создает проблем во время разрезания, не крошится и не раскалывается. Поэтому вполне реально владельцу частного дома построить простенький навес из полимера самостоятельно. Расскажем подробнее, как это можно сделать.
Выбор места
Навесы в частных дворах имеют разное назначение, которое напрямую влияет на их местоположение.
- Козырек располагают прямо над входом, чтобы прикрыть крыльцо от зноя и непогоды. Под ним можно оставлять обувь, не боясь, что она промокнет, или остаться сухим, пока достаешь ключ от входной двери.
- Навес над террасой занимает больше площади, чем козырек у входа. Стена дома становится частью такой конструкции.
- Над зоной отдыха выстраивают отдельно стоящий навес, а также он может быть примыкающим к беседке, летней кухне, любой другой хозяйственной постройке. Нередко под навесом устанавливают мангал или печь барбекю, поэтому располагают зону недалеко от кухни, откуда придется носить посуду и продукты, а также, вблизи источника воды.
- Козырек над детской площадкой монтируют в хорошо просматриваемом месте, откуда легко наблюдать за детьми.
- Большой навес, скрывающий двор от самой калитки до входной двери жилого дома, позволит всегда иметь сухую и чистую придомовую территорию.
- Навес для автомобиля стараются располагать недалеко от ворот. Подъездной путь к нему должен находиться в безопасном для домочадцев месте.
Проект
Выбрав место для постройки, производят чертеж навеса из расчета размеров выделенной территории. Хорошо просчитываются опорные элементы и нагрузка на них кровельного покрытия. Учитывается количество материала, который понадобится для возведения козырька. Его лучше приобрести с небольшим запасом, чтобы покрыть возможные ошибки при монтаже навеса. Далее закупается материал, расчищается и разравнивается строительная площадка.
Установка опор
На подготовленной территории производят разметку: с помощью рулетки, веревок и колышков отмечают места под установку отпор. Количество свай зависит от размера навеса. Кроме 4-х угловых колонн, для больших покрытий понадобятся промежуточные опоры, их устанавливают с шагом 1,5-2 м.
В отмеченных местах выкапывают ямы глубиной 50-80 см и диаметром 40-50 см. На дне углублений делают дренаж – засыпают песок, щебень. Затем устанавливают столбы и заливают бетоном. С помощью уровня выравнивают опоры и оставляют их на несколько дней до полного просыхания цемента.
Каркас
Когда опоры установлены, переходят к монтажу каркаса. По верхнему краю опор производят обвязку: если каркас деревянный, устанавливают балки, если металлический – профилированные трубы. На обвязку монтируют обрешетку, укладывая деревянные брусья или приваривая металлические профили. На следующем этапе нужно подготовить и закрепить водосток.
Покрытие кровли поликарбонатом
На листах поликарбоната производят разметку согласно чертежу, маркером прорисовывают линии разрезов. С помощью циркулярной пилы раскраивают пластик, при этом листы хорошо фиксируют во избежание вибрации.
При раскрое следует учитывать направление каналов сотового поликарбоната, их расположение должно помочь влаге не скапливаться, а свободно покидать ячейки. Необходимо нарезать фрагменты точных размеров, чтобы края совпадали с балками, к которым им предстоит крепиться. По окончании кроя сотовые отверстия освобождают от опилок и стружек.
Укладывают кровельное покрытие защитной пленкой вверх, стараются, чтобы швы попадали на обрешетку, так как к ней монтируют поликарбонат. Крепления выполняются термическими шайбами, они должны отстоять от краев листов на 4-4,5 см.
Подшитые фрагменты полимера соединяют между собой пластмассовым профилем, совпадающим по цвету с поверхностью кровли. Швы, защищенные таким образом, не позволят влаге разрушать навес. Верхние торцы поликарбоната закрывают алюминиевой лентой. На нижние торцы устанавливают перфорированную защиту, она помогает конденсату просачиваться наружу.
Важные нюансы обустройства навеса
В большинстве случаев для обустройства навесов используют металлопрофиль и поликарбонат. Как построить навес из этих материалов, описано ниже.
Металлопрофиль
Под металлопрофилем подразумевается профнастил, которые бывает нескольких марок:
- «Н» – кровля, несущие;
- «НС» – отделка, кровля;
- «С» – отделка, заборы.
Для снежных местностей и конструкций с большим шагом обрешётки лучше использовать «Н» с усиленными рёбрами. В противоположной ситуации подходит марка «НС». Имеет толщину больше 1 мм, волна не меньше 35 мм. Необходимо отметить, что волна может быть трапециевидной, прямоугольной или волнообразной. Для кровли лучше первый вариант – он жестче.
Формы изгиба металлопрофиляИсточник legkovmeste.ru
При создании навеса очень важно правильно рассчитать вес всей конструкции. С учетом этого показателя разрабатывается каркас, рекомендуется применять более легкие материалы.. Работа с листами:
Работа с листами:
- запрещено работать при сильном ветре;
- для резки материала лучше использовать ножницы;
- не стоит укладывать гидроизоляцию, если не будет утеплителя и стен;
- кровля должна быть ровной;
- чем меньше волна и уклон, тем меньше шаг обрешётки.
Видео описание
Как происходит создание полукруглого арочного навеса – в следующем видео:
По длине профиль надо закреплять снизу кровли, обязательно делается нахлёст в зависимости от угла ската. В определенных случаях применяется мастика для герметизации стыков. Крепление саморезами с уплотнителями. К обрешетке надо крепить в нижней точке: шаг зависит от ветрености региона. Любые царапины надо обработать краской.
Поликарбонат
Самый популярный вариант. Ниже будет рассказано о том, как сделать навес из поликарбоната, описаны главные моменты и нюансы работы.
Материал легкий, но прочный, имеет защиту от УФ, не ломается при достаточно сильных нагрузках, падении, легко сверлится и режется, представлен несколькими марками и большим выбором цветовых решений.
Навес для машины из поликарбонатаИсточник ironman64.ru
Есть несколько вариантов поликарбоната:
- профилированный – в нашей стране встречается редко;
- ячеистый/сотовый – имеют многочисленные ребра жесткости, легкие, прочные, могут гнуться, лучший вариант для кровли, бывает разных размеров и толщины, есть усиленный вариант (прочнее и тоньше);
- монолитный – альтернатива стеклу, листы больших размеров, в основном применяют для стен.
Учитывайте степень прозрачности материала. Для беседок и навесов лучше выбирать затемнённые, чтобы под ними не было душно.
При укладке листов важно помнить, что некоторые марки могут укладываться любой стороной к солнцу, а другие – только определенной. Каналы внутри листов обязательно должны быть направлены параллельно уклону
Монтаж при помощи саморезов с шайбами для этого материала и торцевым профилем. Отверстия для саморезов должны быть немного больше самих крепежей, не перетягивать их, обязательно отступать от края, отверстия делать только между рёбрами жёсткости.
Видео описание
В следующем видео наглядно про обустройство навеса из металлопрофиля и поликарбоната к дому:
Листы нарезают перед монтажом ножом, ножовкой или резаком (для листов до 4 мм), более широкие марки разрезаются электроинструментом. Торцы закрываются перфолентой, алюминиевой пленкой и торцевым профилем, не использовать скотч. Каркас под этот материал может быть облегченным, в виде полуарки, но предварительно надо уточнить допустимый уровень изгиба листов. Толщина листа влияет на обрешетку конструкции – чем она больше, тем шире обрешетка. Не забудьте, что сверху защитная пленка снимается в конце работы, а снизу – в начале.
Дерево
Как построить навес к дому из дерева своими руками? По сути, вся процедура мало чем отличается от других материалов. Только в данном случае используются другие крепежи. Дерево имеет ряд важных характеристик – материал очень простой в использовании и обработке. Конструкция служит очень долго при правильном уходе, экологически чистый, доступный и недорогой материал.
Навес для машины с коваными элементамиИсточник static-eu.insales.ru
После монтажа кровли надо подумать о создании сливных желобов. На последнем этапе обустраивается площадка. Проще всего засыпать участок гравием, но это не совсем удобный вариант. Необходимо снять верхний слой грунта, установить бордюр и потом засыпать щебень. Также можно уложить плитку или брусчатку, залить площадку бетоном или использовать древесину.
Материалы
В создание навеса, как правило, каркас и кровельное покрытие делаются из разных материалов, поэтому, рассматривать их будем по отдельности. Сначала разберемся, какие бывают опоры и из чего возводят каркасы для козырьков.


Кирпич, камень или бетон
Из этих видов материалов получаются стационарные прочные и долговечные строения. Но если металлические сваи нужно просто установить, то для кирпича и камня понадобится тщательный расчёт нагрузки и количества необходимого стройматериала. Бетонные колоны нуждаются в дополнительной финишной отделке. Кирпич и камень оставляют неизменными, они выглядят красиво и статусно, но периодически будут требовать определенного ухода.


Металл
Металлические опоры устанавливают после заливки фундамента, делают разметки и буром высверливают отверстия. Затем монтируют столбы, заливают их бетоном и переходят к каркасному сооружению. Для создания каркаса чаще всего применяют профилированные трубы, которые соединяют между собой с помощью сварки. Металл для опор и каркаса должен быть покрыт антикоррозийными составами.


Дерево
Тем, у кого есть опыт в столярном и плотницком деле, собрать каркас из древесины не составит труда. Из материалов и инструментов понадобятся брусья и всевозможные метизы для их соединения. Древесину обрабатывают противогрибковыми средствами. Подготовка материала может длиться неделю, но сам процесс сборки происходит в течение дня. Деревянные строения органично смотрятся на загородных участках. По прочности они уступают металлическим и каменным изделиям. В сухом жарком климате с годами столбы могут потрескаться. Но это не останавливает любителей красивого природного материала в выборе навеса именно из древесины.


Для плоскости козырька можно использовать любой кровельный материал. Особенно гармонично навес будет выглядеть на придомовой территории, если его поверхность совпадет с покрытием крыши основного здания.
            
Стекло
Стеклянный навес, установленный на каркасную обрешетку, не защитит от солнца, но и не допустит попадания осадков на автомобиль. Такой материал для козырька используют редко, он необходим в определенных условиях:
- если навес расположен у стены здания с окнами, прозрачное покрытие не помешает дневному свету проникать в комнаты;
- для поддержания общего стиля ландшафтного дизайна;
- чтобы создать оригинальную современную конструкцию.


Поликарбонат
Этот полимер относится к самым популярным материалам для создания навесов. Он может заменить стекло, не уступая ему по многим свойствам, а иногда и превосходя его. По прочности поликарбонат в 100 раз крепче стекла и в 10 раз прочнее акрила. Он выдерживает температуру от -45 до + 125 градусов. Для покрытия кровли используют монолитный и сотовый виды данного полимера.
Внешне монолитный поликарбонат выглядит как стекло, но легче его в два раза. Материал пропускает до 90% света. Многослойные цветные варианты различаются по дополнительным свойствам: один более прозрачен, другой более прочен и так далее. Особым спросом пользуется двухслойное монолитное изделие, не пропускающее ультрафиолет.

Сотовый (структурированный) поликарбонат представляет соединённые между собой множественные перемычки, поставленные на ребро. Благодаря конструктивным особенностям, листы выглядят так, словно наполнены воздухом, они позволяют ему быть гибким и ударопрочным. Этот вид полимера в 6 раз легче стекла, в два раза лучше его задерживает звук, он способен пропускать свет до 85%.


Профнастил
Выбирая профнастил, учитывают не только его толщину и прочность, но также эстетичный вид, форму волны, идеальность кромки. Слишком толстый материал усилит нагрузку на опоры, а значит, придется приобретать более мощные и дорогие стойки. Оптимальная толщина кровли навеса должна составлять 5 мм.
            
Черепица
Для покрытия навеса можно выбрать керамическую черепицу, мягкую (битумную) или металлочерепицу. Каждый материал имеет собственные характеристики.
Керамическая. Изготавливается из глины, поэтому имеет большой вес (40-70 кг на кв. м). Опоры для навеса нужны усиленные, но зато кровля прослужит до 150 лет. Это пожаробезопасный экологичный материал, не боится морозов, не выцветает на солнце. К минусам относится сложность монтажа, большой вес и высокая стоимость.























































