Ворота и калитка из профнастила своими руками.
(фотографии, инструкция, видео мастер-класс)
Как сделать распашные ворота с калиткой из профнастила своими руками? Самый простой случай для установки распашных ворот – это установка между домом и забором. А в данном случае ворота с калиткой устанавливаются ещё и между кирпичными столбами, что упрощает задачу, особенно в плане измерений.
Сначала автор видео мастер-класса установил три вертикальных металлических столба из профтрубы с более широкой площадью поперечного сечения, чем имеет труба, использованная для создания каркаса ворот. Первый столб крепится к дому, второй находится от первого на расстоянии равном ширине калитки, ну и третий столб устанавливается к кирпичной опоре забора. Расстояние между вторым и третьим столбами будет как раз равно ширине распашных ворот.
Для установки этих столбов мастер сначала пробурил три ямы в нужных местах, затем установил столбы по одному уровню, проверил вертикали и, в конце концов, залил яму бетонным раствором (к сожалению, весь этот процесс не показан на снимках, но ничего страшного, вы уже должны знать, как всё это делается, ведь немного выше в статье я показал вам несколько подробных инструкций).
Затем, на столбы были установлены каркасы ворот и калитки, которые в итоге были покрыты профнастилом.
Вот и всё.
Источник идеи и фотографий, видео мастер-класс: https://www.youtube.com/watch?v=IcPECp4cTDUОригинальное название: СВАРИВАЕМ ВОРОТА И КАЛИТКУ У СЕБЯ ДОМА СВОИМИ РУКАМИ !WELD THE GATE AND THE GATE HOUSE WITH HIS OWNАвторвидео: МОТИВАЦИЯДОБРУИЖИЗНИЧЕЛОВЕКА
Простые ворота со встроенной калиткой из профнастила своими руками, 2 в 1.
(Как сделать калитку в воротах из профнастила?)
Не знаю, как вас, но меня, прежде всего, заинтересовала вот эта модель. Сейчас объясню чем именно:
Всё дело в том, что внутри металлического каркаса для ворот располагается калитка с выделенным местом для врезного замка. То есть, после установки данной конструкции, её можно будет использовать и как калитку, и как ворота, это, во-первых, очень удобно, а во-вторых, экономит место, так что такая модель подходит для тех людей, которые не имеют возможности создать большой проем для калитки с воротами.
По размерам всей этой конструкции нарезается профнастил, в котором вырезаны отверстия под петли.
Источник идеи и фотографий, видео мастер-класс: https://www.youtube.com/watch?v=x-AzsYobd18Оригинальное название: Прикрутка профнастила и полный финишАвтор видео: Миша Коваль
Ворота из дерева с калиткой
Если вы отдаете предпочтение такому материалу как дерево, то изготовить деревянные распашные ворота не составит особого труда. Для их создания потребуются:
- материал для изготовления створок (деревянные доски);
- саморезы;
- доски толщиной от 40 до 50 мм и шириной в 150 мм;
- специальные петли;
- краска по дереву;
- металлические уголки (используются при изготовлении деревянных распашных ворот);
- антисептический состав;
- рубероид;
- мастика.








Кроме того, для изготовления деревянных ворот необходимы будут такие инструменты как:
- уровень;
- электродрель;
- рулетка;
- болгарка;
- кисточки.

Деревянные ворота с калиткой изготавливаются примерно так же как и металлические ворота за исключением отдельных нюансов.

Отделка
Под отделкой обычно понимается зашивка полотна створок листами профнастила, а также грунтовка антикоррозийным грунтом и последующая покраска эмалью в нужный цвет. Перед грунтовкой и покраской нужно обязательно зачистить все сварные швы и ржавчину до металла, болгаркой с зачистным кругом. Обезжириваем раму и каркас растворителем и грунтуем антикоррозийной грунтовкой, сначала места сварки, а после их высыхания, створки полностью.

Грунтовка и покраска каркаса ворот
После высыхания слоя грунтовки можно покрыть створки ворот алкидной эмалью в два слоя с промежуточной сушкой между ними. Ворота почти готовы, остаётся повесить створки на петли и прикрутить профнастил. Прикручиваем обрезанные по размерам листы профнастила к каркасу саморезами с помощью шуруповёрта.
А также в отделку включается добавление ажурных кованных элементов на фасад ворот или на верхнюю часть, примеры таких работ можно увидеть в галере выше. Стоит добавлять такие элементы или нет каждый решает сам, это дело вкуса.
Замок на ворота
Замок на ворота можно приобрести любой и также как при монтаже в обычной двери присутствуют некоторые особенности. При монтаже замка в зависимости от его вида выполняются следующие условия:
-
Навесной. Для навесного замка на ворота и калитку следует предусмотрительно сделать петли ещё на этапе сборки каркаса.
- Накладной монтируется на поперечной перемычке, прикручивается к раме.
- Врезной. Для этого типа замка предварительно вырезается карман в противоположной от завесов поперечной трубе створки.
-
Нижние фиксаторы створок нужны для равномерного распределения ветровой нагрузки на ворота.
Видео: изготовление ворот из металлопрофиля своими руками
При большом наличии желания и приложении усилий в нужном направлении, постройка ворот достойного качества, является вполне выполнимой задачей для человека с минимальной технической подготовкой.
Производители
Плюсы профнастила неоспоримы: легкий, экологичный, долговечный, удобный в транспортировке и монтаже материал. Наиболее популярными производителями (по мнению пользователей) этой продукции являются «МеталлПрофиль» и Tegola, хорошо зарекомендовала себя финская компания Ruukki. Их сертифицированная продукция славится проверенным финским качеством и распространена по всем странам СНГ. Имеет широкий спектр применения – от создания кровель до дачных калиток.


Компании ThyssenKrupp (Германия) и ArcelorMittal (Бельгия) являются признанными лидерами в производстве евроштакетника. Однако в последнее время отечественный производитель начал радовать продукцией такого же высокого качества, но совершенно другой ценовой категории
Обратите внимание на бренды NovaLux, Grand Line, «Сталекс»

Типы ворот из профнастила
Владельцы частных домов желают не только защитить свою территорию от проникновения посторонних лиц, но и сделать ее эстетически привлекательной. Эти задачи проще всего выполнить с помощью устройства забора и ворот из профнастила. Строительство первого редко вызывает затруднения, но с монтажом въездной группы неизбежно возникает ряд вопросов. В числе первых — выбор типа ворот.
Существует два варианта устройства калитки:
- Справа или слева от ворот.
- Непосредственно в одной из створок ворот.
В первом случае для монтажа калитки потребуется установить дополнительную опору. Второй вариант выгоден тем, что для устройства въездной группы достаточно 2 (а не 3) столбов, существенно сокращаются трудовые и финансовые затраты.

Оригинальный дизайн и оформление кованными элементами ворот из профнастила с калиткой
Забор с калиткой
- распашные ворота;
- откатные ворота;
- подъемные.
Любой из перечисленных типов конструкций можно оснастить системой автоматизированного управления.Первый вариант наиболее популярен благодаря простоте и дешевизне своего устройства. Несмотря на выбранный тип ворот, на этапе планирования предстоящих работ понадобится выяснить для себя следующие моменты:
- Оптимальная ширина въезда для автомобиля. Имеет смысл ориентироваться на следующее правило: ширина ворот должна соответствовать стандартным размерам легкового автомобиля плюс 1 м. В этом случае во двор можно будет заезжать легко и свободно, не рискуя задеть машиной опоры створок.
- Определиться с тем, будет ли калитка встроенной в ворота или расположенной рядом с ними.
- Выбрать материал для строительства столбов.
- Выбрать марку профнастила.
Забор может быть выстроен с использованием деревянных, металлических или кирпичных опорных стоек. У каждого из этих материалов есть свои преимущества. Так, дерево выгодно тем, что к нему наиболее легко крепить профлист на забор. В работе с металлическими столбами понадобятся сварочный аппарат и навыки работы с ним. Кирпичные столбы надежны и эстетически привлекательны, но требуют солидных финансовых и трудовых затрат.

Схема с размерами каркаса ворот из профнастила с калиткой
деревянными заборными столбами
Это требование актуально не только для откатных и автоматизированных, но и для распашных ворот
Крайне важно правильно выбрать марку профилированного листа. Если этот материал будет тонким, в процессе эксплуатации на нем неизбежно останутся вмятины и царапины, что снизит эстетическую привлекательность конструкции
Выбираем материал
В качестве несущей конструкции выбирается профтруба. Толщина стенок в среднем составляет 2,5 мм. С профтрубой не может соперничать даже уголковый или П-образный профиль со стенками аналогичной толщины. Профлист обладает длиной в 6-12 м, причем некоторые поставщики режут его на двухметровые отрезки. Длина волны профлиста – до 15 см, ширина – 1-2 м, толщина листа – 0,9-1,8 мм. Более толстые профлисты не производятся. Если требуется большая, чем 1,8 мм, толщина, то воспользуйтесь обычной листовой сталью, не имеющей цинкового покрытия. Такая применялась при строительстве стальных гаражей.
В качестве петель подойдут любые гаражные петли, выдерживающие створки ворот. Опыт показывает, что на запасе прочности лучше не экономить: крепкая калитка, которую можно изготовить в домашних условиях, послужит гарантом надёжной защиты от непрошеных гостей. Усиленные петли должны работать чётко, без заедания, подобно шарнирам.
Особенности материала
Стальная основа и полученные в результате прокатки ребра жесткости придают профилированным листам высокие прочностные характеристики. Конструкции из этого материала довольно легкие, но обеспечивают прекрасные эксплуатационные показатели.
Механические характеристики
В зависимости от толщины листа, формы и высоты гофра определяется область применения материала. По назначению профнастил делится на несколько категорий. Тип листа можно узнать по маркировке:
- Н — несущие листы. Они отличаются повышенной прочностью и обеспечивают жёсткость конструкции. Этот тип используется для перекрытий.
- С — стеновые листы. Предназначены для заборов и лёгких построек.
- НС — несуще-стеновые листы. Этот тип универсален, подходит для возведения кровли и ограждений.
- ПК — кровельные листы. Подходят для обшивки крыш.
- ПГ — продольно гнутые листы, имеющие продольный гофр. Используются для возведения крупногабаритных арочных конструкций, например, навесов и ангаров.
За буквенным обозначением следуют цифры, указывающие навысоту гофра в миллиметрах. Чем больше это значение, тем выше жёсткость листа. Для сооружения забора и калитки оптимально использовать гофр от 10 до 20 мм. При использовании стеновых листов можно остановить свой выбор на марках С10, С18, С20.
В данном видео рассмотрим ограждения из профнастила:
Виды покрытий
Профилированные листы из цветных металлов и нержавеющей стали встречаются довольно редко и стоят очень дорого, поэтому для продления срока службы используется антикоррозионное покрытие.
Крайне редко в продаже встречаются профлисты без покрытия. Это самый дешевый вид продукции. Для обеспечения минимальной защиты такие листы можно покрасить любой эмалью для стальных поверхностей
Декоративные характеристики будут невысокими, а срок службы сильно сократится.
Базовая защита профлистов от коррозии — цинковое гальваническое покрытие. Подавляющее большинство металлопроката выпускается именно в оцинкованном виде. На поверхности изделий присутствует слой цинка толщиной несколько десятков микрометров, предохраняющий сталь от механического и химического воздействия. Однако не следует забывать, что даже качественно выполненное покрытие при эксплуатации не способно обеспечить надежную защиту от коррозии.
Наибольшую стойкость к механическим воздействиям и максимальную защиту от коррозии обеспечивает полимерное покрытие. Срок службы полимерного слоя существенно превышает стойкость цинкового покрытия. Оболочка надежно защищает сталь от воздействия агрессивных сред. Наиболее популярны следующие полимеры:
- Акрил — устойчив к воздействию солнечных лучей и влаги, имеет хорошую адгезию к металлическому основанию.
- Полиэстер — обладает хорошими антикоррозионными свойствами, стоек к воздействию жары и холода, долго не теряет яркость цвета.
- Поливинилхлорид — имеет стойкость к большинству внешних воздействий, характеризуется высокой морозостойкостью, не трескается при изгибающих воздействиях даже в условиях отрицательных температур.
- Поливинилиденфторид — характеризуется особенной устойчивостью к негативным погодным явлениям. Отлично сохраняет декоративные свойства на протяжении многих лет эксплуатации.
- Полиуретан — не боится солнечных лучей, химически агрессивной среды и коррозии.
В настоящее время широко распространена практика нанесения декоративных принтов на полимерное покрытие. Ассортимент цветовых решений и рисунков огромен. Декорированные профлисты создают существенную конкуренцию всем прочим материалам при обустройстве ограждений. Умелые дизайнерские решения позволяют сделать акцент на калитке в заборе из профнастила, имитировав, например, кованые текстуры.
Ворота из профнастила своими руками: чертежи и схемы
Любое строительство или изготовление конструкции невозможно без чертежа или хотя бы эскизного рисунка с чётко обозначенными размерами. Поэтому для изготовления ворот из профнастила своими руками чертежи, схемы просто необходимы, и без них никак не обойтись. Определившись с местом расположения объекта и произведя замеры, на листке бумаги, вспоминая школьные уроки черчения, следует нанести основные параметры будущей конструкции. За основу можно взять готовый проект ворот, который несложно найти в интернете и внести собственные изменения и размеры.
ФОТО: гаражные-ворота72.рфЭскиз конструкции простых распашных ворот с отдельно расположенной калиткой из профильной трубы
ФОТО: master-style.com.uaЭскизный проект ворот и калитки с двухсторонней обшивкой листами профнастила
ФОТО: roomester.ruЧертёж каркаса полотна откатных ворот
Ворота распашные металлические с калиткой из профнастила
Многих владельцев частных домов интересует, как построить ворота из профнастила своими руками и какой выбрать проект. Наиболее распространены различные конструкции распашных ворот, состоящих из двух створок, которые могут открываться внутрь или наружу и используются для проезда транспортных средств. Для входа и выхода обустраиваются распашные ворота с калиткой из профнастила с учетом веса. Это даст возможность удобной эксплуатации конструкции.
Калитка может располагаться рядом или быть вмонтирована в одну из створок ворот. Расположение калитки во многом зависит от количества свободного пространства и предпочтений хозяина дома.
ФОТО: alumdevelop.ruВорота с массивным каркасом
Основным достоинством распашных металлических ворот с калиткой из профнастила является более низкая себестоимость и высокая надёжность. Единственный подвижный механизм в простых воротах из профнастила — петли, обслуживание которых заключается в периодической смазке шарнирного соединения для легкости хода и профилактики появления коррозии.
Изготовить ворота из уголка и профнастила своими руками несложно, обладая умением производить слесарные работы и пользоваться сварочным аппаратом.
Самые простые ворота из профнастила своими руками — со столбиками из керамического кирпича с отдельной калиткой.
Монтаж ворот из профнастила
Для начала мы расскажем тебе про простые распашные ворота. Эта конструкция самая понятная, в ней нет сложных узлов и практически невозможно ошибиться. Идеальный выбор для новичков!
Каркас для ворот из профнастила
Для каркаса возьми трубы и профили сечением 4х4, 6х2, 6х4 или 6х6 см и пару труб 2х2 см для внутренних перемычек. Обязательно прогрунтуй все профили противокоррозионной грунтовкой. В углубление примерно на треть высоты опоры засыпь щебневую подушку и вставь опору строго вертикально. Забетонируй ее и накрой сверху защитной накладкой от влаги.
Нарежь трубы под углом, чтобы стыки аккуратно и легко заваривались, а потом на них не скапливалась вода. Зачисть все элементы от ржавчины и грязи, постоянно контролируй уровень, а потом еще отдельно зачисть сварные швы. В конце каркас можно покрасить специальной противокоррозионной краской для металла.
Укрепление каркаса
Для укрепления конструкции навариваются металлические уголки для жесткости. Для узких створок и калиток до полутора метров подойдут готовые сплошные «косынки», а для более широких нужна диагональная перемычка из трубы меньшего диаметра. Для предотвращения парусности от ветра устанавливаются перемычки и ребра жесткости.
Монтаж петель
Для легких створок хватит двух петель, но для усиленных рекомендуем устанавливать по три. Они сначала привариваются к опорным стойкам, а уже потом – к каркасу. Обязательно учитывай, как должна открываться створка, чтобы понять, как именно приварить петли: встык к опоре или накладкой.
Обшивка профнастилом
Волнистая структура профлиста удобна для монтажа: к каркасу прикручивай листы через нижние волны, а между собой соединяй по верхним. Используй только основную опору и не прикручивай ничего к усилительным перемычкам. Лучше возьми специальные заклепки – они аккуратнее и не так заметны, но саморезы тоже подойдут.
Установка замка
Для навесного замка еще во время обшивки привари к каркасу петли. Врезной врезается непосредственно в трубу, поэтому он самый незаметный. Накладной монтируется на раму или дополнительно наваренный металлический лист.
Чтобы надежнее зафиксировать полотно и снять нагрузку с одного замка, нужны нижние фиксаторы, которые уходят в землю. Изнутри устанавливаются защелки или засовы.
Автоматика для ворот
Для дистанционного управления нужен электропривод, вместе с которым можно установить сигнализацию и камеру. Удобнее всего с откатными и подъемно-поворотными, ведь если ворота раздвижные, придется устанавливать два привода и синхронизировать работу створок. Самые непрактичные и не особо применимые в быту – распашные автоматизированные ворота.
Подготовка к началу работ
Профнастил относится к металлическим материалам, поэтому важно соблюдать весь порядок выполнения работ. Здесь нельзя обойти стороной этап по подготовке к сооружению элемента садового ограждения
Малейшая ошибка, оплошность скажутся на внешнем виде калитки и могут его испортить. Выполнение всех предварительных манипуляций гарантирует большую вероятность получения добротно выглядящего изделия. При решении проводить изготовление своими руками сначала необходимо:
- изучить конструкции и выбрать что-то из имеющихся или придумать свою собственную (учитывая рельеф местности и другие параметры);
- определиться с размерами каркаса и составить чертежи;
- подобрать все необходимые материалы и инструменты.
Изучаем конструкции
Калитка из профлиста будет привлекать взгляд прохожих оригинальностью, если приложить небольшие усилия для выбора оптимальной конструкции. Это своего рода визитная карточка дома и его владельца, поэтому стоит отнестись к подбору добросовестно. Существуют элементы оградительных построений такого типа в виде арок и прямоугольные. Первые выглядят очень эффектно, но требуют особых опыта и мастерства, поэтому подойдут к исполнению профессионалом. Вторые сможет выполнить начинающий умелец и, при подборе выигрышного варианта, тоже будут смотреться достойно.
Калитки из профлиста отличаются возможностью их установки в заборах из совершенно разных материалов: сетки, кирпича и многих других. Это совсем не испортит внешний вид ограждения, а придаст ему большую эффектность. Поэтому следует сказать об универсальности профнастила.
В зависимости от того, сколько есть места, расположения сооружения, количества приобретенного или имеющегося материала, подбирается оптимальный вариант конструкции. Он может быть выполнен в форме простой створки. Дверцы могут быть сплошными или закрывать центр (с нижней и верхней стороны в таком случае располагаются решетки).
Возможна более сложная конструкция: с вертикально или горизонтально расположенными проемами. Их могут закрывать решетки (материал изготовления – арматурные прутья) в форме квадратов или полосок.
Калитки могут содержать в своей конструкции вставки. Усилить каркас и украсить помогут кованые вставки. Это сделает конструкцию жесткой. Не менее выигрышным вариантом являются прямоугольные контрастные вставные части.
Есть множество вариантов выполнения каркасов, но подбираются они по следующему требованию: должны быть ровными и жесткими. Горизонтальные перемычки, или лаги, и диагональные вставки, или ребра жесткости, позволяют добиться жесткого каркаса. Возможен вариант прохождения ребер жесткости по всей конструкции или пересечения каждого сегмента (конструкция может быть разделена по сегментам с помощью поперечин).
Чертежи и размеры каркаса
Стандартной шириной калитки считается один метр. Такое сооружение оптимально для вноса и выноса мебели и других предметов. Более широкая калитка склонна к деформации и меньшему сроку службы за счет быстрого износа петель.
Стандартной высотой считается от 2 до 2,2 метра. Если аналогичный параметр полотна забора – выше этого параметра, рекомендуется установка металлических перемычек на месте проема.
В случае проживания в жилом строении людей ростом около двух метров установленная калитка, в высоту более указанных параметров, требует усиленных петель и дополнительного укрепления рамки.
Возможно выполнение калиток без перекладин (для упрощения задачи).
Рекомендуемое место установки – бетонный фундамент, заглубленный ниже того уровня, на который промерзает почва.
Выбор материалов и инструментов: советы мастерам
Лист для изготовления калитки должен быть оцинкован с двух сторон, необходимо наличие полимерной защиты с одной из них. Возможна внешняя имитация камня, дерева, кирпича.
Листы имеют маркировку. Для выполнения работ по устройству калиток подходят модификации с заглавной буквой «С» в маркировке или с двумя заглавными «НС». Облицовку желательно выполнять листами с буквой «С» и цифрами 20-21 в маркировке. Число после буквы соответствует высоте волны в профиле. Возможен монтаж листов как по длине, так и по ширине. При покраске допускается использование порошковых красок или полимеров. Красить профлисты разрешается с двух сторон. Рекомендуемая толщина – от 0,45 до 0,50 мм. В маркировке первой указывают высоту, затем толщину, ширину, длину листов.
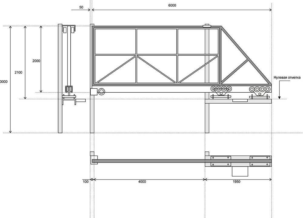
Чертеж откатных ворот из профнастила
Стандартные консольные откатные ворота из металлопрофиля состоят из створки, которая закрывает проезд, и противовеса. Ширина створки равна ширине проезда, измеренной по внутренней части и увеличенной на 200 мм — по 100 мм с обеих сторон отводится на перекрытие опоры. Ширина противовеса должна быть не меньше половины проезда
Это очень важно, поскольку на противовес приходится вся нагрузка во время открытия и закрытия ворот. Если его сделать короче, то ворота будут клинить, направляющая подвергнется деформации, а роликовые каретки быстро износятся
Поэтому если вы не можете отвести сбоку от ворот половину их ширины для размещения противовеса, консольные раздвижные ворота из профлиста — не ваш вариант.
Пример
Если ширина проема равна 3 метра, то прямоугольная часть ворот должна быть 3,2 метра, противовес — 1,5 метра, а общая ширина рамы — 4,7 метра.
У откатных ворот есть два каркаса: несущий и вспомогательный.
На несущий каркас, как видно из названия, приходится основная нагрузка. Это все стороны противовеса, а также внешние стороны створки. Несущую раму делают из трубы 60×30 мм.
Вспомогательный каркас — это ребра жесткости для конструкции, а также трубы для крепления профнастила. Этот каркас состоит из внутреннего прямоугольника в створке, горизонтальных и вертикальных ребер жесткости, расположенных примерно через каждый метр. Его делают из профиля 40×20 мм.
Последнее, что нужно знать для создания чертежа откатных ворот из профлиста — форму противовеса. Она может быть треугольной и прямоугольной и зависит это от ширины проема и общего веса ворот.
Треугольный противовес делают при проеме шириной до 6 метров и при весе до 400 кг. Профлист — очень легкий материал, поэтому обычно требование по весу опускают, ориентируясь только на ширину проезда. Даже если речь идет о высоких воротах, например, закрывающих въезд на склад или в цех. Хотя для уверенности вы можете посчитать вес.
Для этого нужно сначала рассчитать вес рамы при учете, что стальная профильная труба 60×30 мм со стенкой 2 мм весит 2,7 кг на погонный метр, а профиль 40×20 со стенкой 2 мм — 1,81 кг на погонный метр. Затем к нему нужно прибавить вес профнастила — 4,5 кг на 1 м² при толщине 0,45 мм.
Пример
Посчитаем, сколько весят откатные ворота 4 метра из профнастила стандартной высоты в 2 метра. Для них нужны:
- 17,22 м труб 60×30 мм (длина нижнего профиля — 6,2 м, верхнего — 4,2 м, боковых — 2 м, гипотенузы в противовесе — 2,82 м);
- 22 м труб 40×20 мм (длина нижнего, верхнего и центрального профиля — 4 м, двух боковых и трех ребер жесткости — 2 м);
- 16 м² профлиста для зашивки створки с обеих сторон.
Следовательно, вес откатных ворот 4 метра из профнастила будет равен:
где х — нужный промежуток между планками. Получим, что шаг должен быть равен примерно 67,3 мм.
Обратите внимание: в расчетах не учитывается масса направляющей, поскольку она, как и ролики, подбирается исходя из веса каркаса. По этой методике вы легко можете примерно посчитать вес ворот по вашим размерам
Но поскольку на это далеко не всегда есть время, для вас мы уже рассчитали массу откатных ворот распространенных размеров и свели ее в таблицу
По этой методике вы легко можете примерно посчитать вес ворот по вашим размерам. Но поскольку на это далеко не всегда есть время, для вас мы уже рассчитали массу откатных ворот распространенных размеров и свели ее в таблицу.
| Ширина ворот, м |
Высота ворот, м |
Вес, кг |
| 3 | 2 | 124 |
| 4 | 158 | |
| 5 | 193 | |
| 6 | 228 | |
| 3 | 3 | 164 |
| 4 | 209 | |
| 5 | 255 | |
| 6 | 300 |
Как видно из таблицы, вес откатных ворот 5 метров из профнастила, как и створки, шириной 6 метров, далек от 400 кг даже при высоте 3 метра. Поэтому смело делайте треугольный противовес для любых ворот, в том числе и высоких.
Теперь, когда все детали будущего чертежа известны, начертите его или нанесите свои размеры на образец ниже. Размеры наносите с учетом сечения профильных труб.
На нашем примере чертежа раздвижных ворот из профлиста нет столбов — это исключительно схема самих ворот. Если хотите получить чертеж всей входной группы, учитывайте, что фундамент под противовесом всегда выводится в ноль. Поэтому вы должны знать уровень чистового покрытия перед тем, как делать такой чертеж. А если нужны откатные ворота из профнастила с калиткой, то ее лучше расположить сбоку со стороны противовеса, чтобы не слишком нагружать роликовые каретки.
Конструкции
Чтобы сделать простейшую конструкцию ворот из профлиста, понадобятся 2 распахивающиеся створки на крепком основании. В качестве опоры, на которой с помощью петель они крепятся, необходимо использовать стальные трубы – прямоугольные, круглые или Т-образные, которые углубляются в землю с заливкой бетонного фундамента. Рама ворот может быть с верхней горизонтальной перекладиной или без нее. В первом случае весь каркас получится более жесткий, но тогда будет ограничение по высоте и во двор не смогут заезжать высокие машины.
Створки ворот, кроме самой рамы, имеют перемычки для придания большей жесткости. Они могут быть расположены горизонтально, наискосок или крестообразно, какую схему изготовить, зависит от предпочтений хозяина. Главное, чтобы их было достаточно для жесткой конструкции, например, при высоте 2 м достаточно установить пару горизонтальных перемычек на одинаковом расстоянии от краев рамы.
Основание, на которое крепится рама ворот из профнастила, может быть изготовлено в виде массивных столбов из облицовочного кирпича, бетона или бута. В этом случае вся конструкция приобретает совершенно другой внушительный вид и становится намного прочнее. А профилированный лист сочетается практически с любыми строительными материалами.
Металлический запор для таких двухстворчатых ворот устанавливается с внутренней стороны в нижней части створок. Он предназначен для фиксации ворот в закрытом положении.


Замок для распашной конструкции можно выбрать из нескольких вариантов. Простейший вид – это металлический шпингалет, который можно найти в любом строительном магазине или изготовить самому из подручных материалов. Другой способ надежного закрытия – это сдвижной запор из петель и оцинкованной задвижки с ручкой. Если не хочется мудрить, то есть возможность просто приварить к створкам с внутренней стороны две петли и повесить на них походящий навесной замок.
Интересным решением будет проект автомобильных ворот со встроенной калиткой. Такая конструкция позволит сэкономить место для проема в заборе, но каркас будет иметь более сложный вид. Для калиточной рамы в одной из створок надо делать дополнительные вертикальные перемычки, стоит заранее создать подробный чертеж с размерами и рассчитать всю нагрузку.


Одностворчатые распашные ворота для машины делают редко: на одну большую створку приходится слишком большая нагрузка. Да и открывать их сложнее, поэтому лучше использовать традиционный вариант.
Оригинальны идеи раздвижных автомобильных ворот из оцинкованного профиля, которые для открытия-закрытия двигаются в вертикальной плоскости вдоль забора. Сложность заключается в том, что для них надо установить направляющие рельсы и приварить ролики для движения, а для мягкого хода использовать пружины или амортизаторы. Зато открывать их будет легко, они экономят свободное пространство.


Раздвижные ворота примечательны тем, что их легче сделать автоматическими, чем распашные. Достаточно монтировать электрический привод и подключить его к подвижному механизму. Работу можно обеспечить полностью дистанционным вариантом и открывать/закрывать ворота, не выходя из машины, что особенно удобно в непогоду.
Достоинство раздвижных ворот состоит еще и в том, что для них достаточно одной створки. Надо просто сварить раму из металлического профиля, добавить ребра жесткости и обшить каркас профлистом.
Симпатичную конструкцию ворот из профлиста можно создать, повесив над ними небольшую крышу или арку из того же материала. Кроме красоты, она будет еще и полезной – защищать замок, запор и другие металлические детали от дождя.
Производители
Если вы покупаете готовую калитку или необходимые для нее материалы, то вам следует обращаться к популярным производителям, имеющим хорошую репутацию, чтобы не наткнуться на низкокачественные товары.
«Кузница»
Этот российский производитель выпускает высококачественные кованые калитки, а также дополнительные декоративные детали к ним. Каждый потребитель может заказать в «Кузнице» необходимый для него вариант входной створки, который будет изготовлен в кротчайшие сроки.
Потребители отмечают прекрасный дизайн фирменной продукции, а также ее износостойкость и долговечность. Огорчает многих лишь высокая стоимость на любые кованые конструкции.

«Нарс»
Это еще один российский производитель, выпускающий красивые и долговечные заборы, калитки, перила и ворота, а также беседки и скамейки. Изделия компании «Нарс» так же являются коваными и отличаются повышенной прочностью. Продукция этой фирмы доступна в 7 городах России.
Продукция компании «Нарс» изготавливается по стандартным чертежам и по индивидуальным заказам потребителей.

Park 3D
Эта крупная компания занимается выпуском калиток, ворот и заборов из рабицы, а также комплектующих к данным конструкциям. В ассортименте фирмы встречаются не только классические распашные, но и откатные системы, а также конструкции повышенной безопасности, дополненные спиральным барьером из ключей проволоки.

«АДВ-Трейд»
Эта компания предлагает на выбор покупателей высококачественные финские садовые калитки, выпускаемые производителями Alavus, Mattiovi, Kaski. Надежные и привлекательные полотна изготавливаются из дерева, а некоторые даже оснащаются стеклянными вставками (стеклопакетами).
Потребители могут подобрать деревянную садовую или дачную калитку разных цветов. На выбор фирма предлагает несколько заводских расцветок: черную, белую, темно-серую, а также несколько разных оттенков коричневого. Дверные блоки изделий могут быть как одностворчатыми, так и двухстворчатыми.

ООО «ВВВ» на базе «Ремонтно-Механический завод подольский»
В ассортименте этого российского производителя имеются качественные и красивые калитки с элементами художественной ковки, металла, профлиста и недорогой сетки-рабицы. Продукция представлена в разных расцветках, от классических черных и коричневых до ярких желтых и бордовых.

Советы профессионалов
- Навес или небольшая крыша, установленная над калиткой, защитит хозяев от непогоды или дождя, пока те будут заняты поисками ключей.
- Замок или щеколда обеспечит прочное и надежное запирание калитки.
- Светильник или выносной фонарь-прожектор поможет осветить пространство у входа.
- Подвесной колокольчик либо звонковое устройство на калитке помогут оповестить домовладельцев о приходе гостей.
- Домофон и камера наблюдения дают возможность дистанционно принимать решения касаемо того, открыть калиточную дверь или нет.
- При большой высоте дверной калитки можно сделать одну из ее секций в виде вставки из прозрачного поликарбоната, что даст возможность увидеть пришедших, не подходя близко к калитке или воротам.


















































